Woning Ankeveen

afbeeldingWoning Ankeveen

Wij bouwen houten woningen op maat

Iedere houten woning is uniek. Daarom zijn de projecten op deze website bedoeld ter inspiratie. Zoekt u iets landelijks of juist een woning met een moderne uitstraling? Door onze ervaring met duizenden projecten ontwerpen we graag het houten woning die precies bij u past. Verschillende stijlen zijn daarin mogelijk, bekijk gerust deze recente ontwerpen eens.

Wilt u weten hoe hoog de investering is voor een woning naar uw wensen? Vul dan vrijblijvend het offerteformulier in of neem op een andere manier contact op. In het kort inventariseren we uw wensen en geven direct een indicatie.

Bezoek gerust onze showroom met verschillende gebouwen waaronder zelfs een houten woning. Daarnaast geven we u graag een rondleiding door onze moderne werkplaats waar we jaarlijks meer dan 300 houten gebouwen weten te realiseren!

Vraag offerte aan

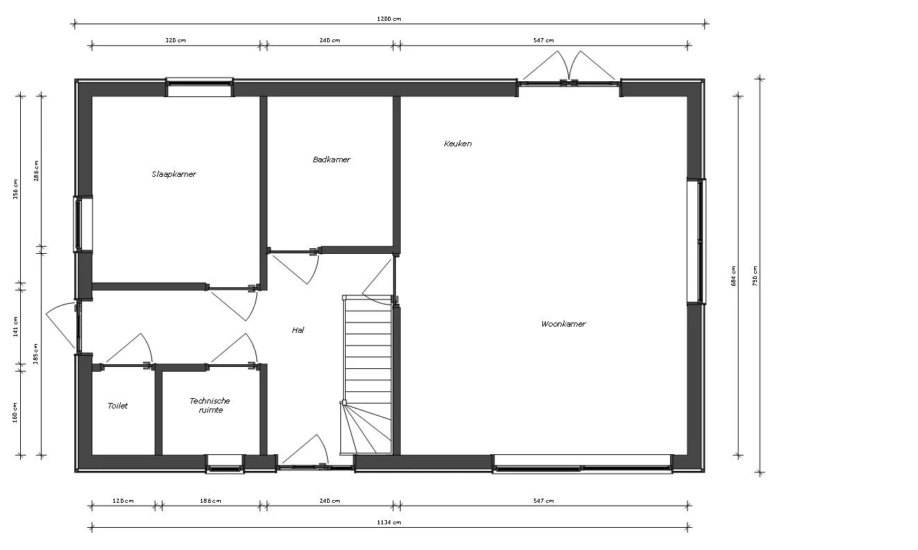
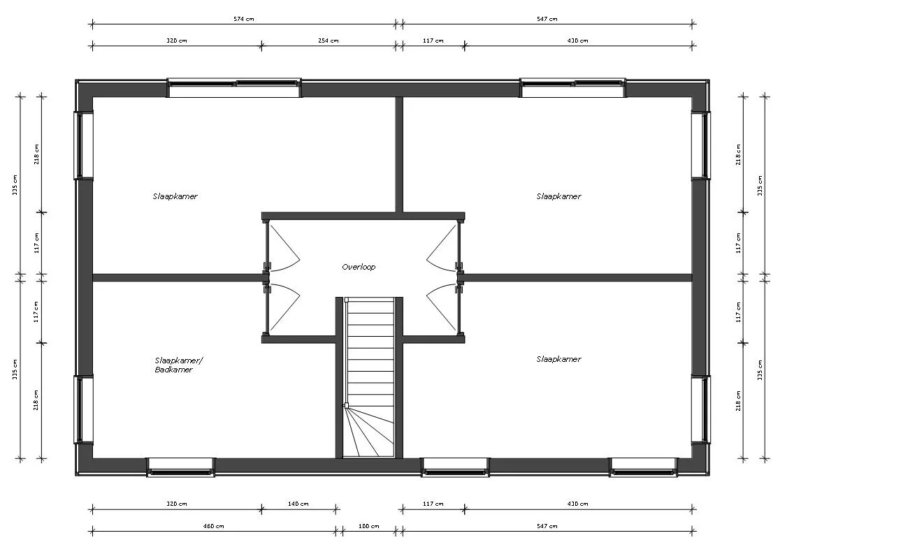
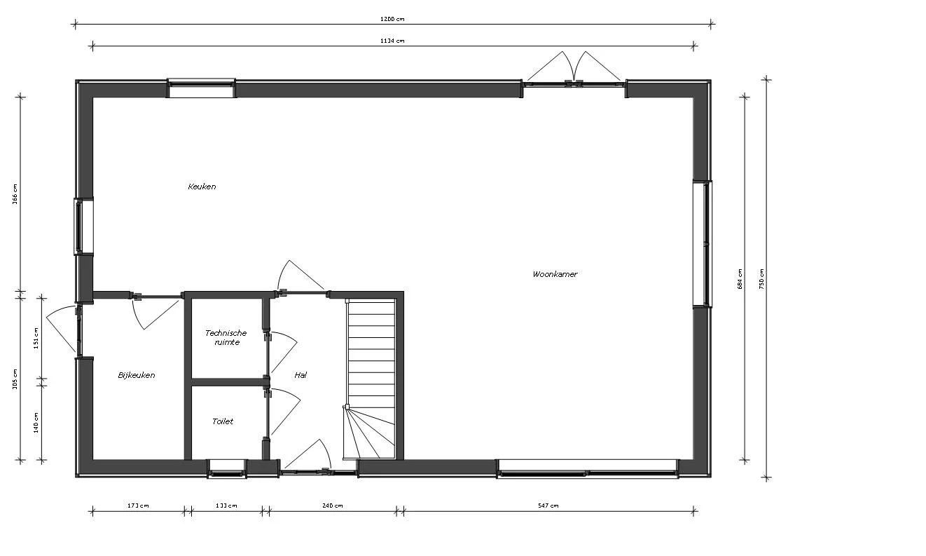
Projectinformatie

Lengte
12 m
Breedte
7.5 m
Hoogte
6 m
Oppervlakte
90 m2
CODE ERROR
CODE ERROR
CODE ERROR

Prijs

Basis

220.500

Comfort

305.550

Compleet

382.200

De prijzen zijn in euro's. Aan deze prijzen kunnen geen rechten worden ontleend.

Offerte aanvragen

Bent u enthousiast geworden en benieuwd wat Geldersche Houtbouw voor u kan betekenen? Vraag nu een vrijblijvende offerte aan!

Wij begrijpen dat het kiezen van het perfecte gebouw een belangrijke beslissing is, en we willen u graag helpen bij elke stap van het proces. Met onze jarenlange ervaring en vakmanschap zorgen we ervoor dat uw houten gebouw aan al uw wensen voldoet, of het nu gaat om extra opbergruimte, een gezellige buitenlounge of een multifunctionele werkruimte.

Laat ons weten wat uw ideeën zijn, en ons team staat klaar om een op maat gemaakte offerte voor u samen te stellen.

Stap 1 van 2

Afmetingen
Sleep bestanden hierheen of
Max. bestandsgrootte: 64 MB.
    Showroom

    Showroom

    In onze showroom bent u van harte welkom! Hier vindt u verschillende houten gebouwen van een schuur met overkapping tot zelfs een complete houten woning! Wanneer u het fijn vindt om zomaar even rond te kijken komt u gewoon even langs. Wanneer u een afspraak maakt weten we zeker dat we de tijd hebben om u vrijblijvend op weg te helpen. Wilt u meer weten over de showroom? Bezoek dan onze pagina over de showroom.

    Bezoek inplannen

    Andere klanten bekeken ook

    Wat zeggen klanten over ons

    Geeft ruimte. Voor elkaar. Om te genieten.

    Realistische visuals
    Realistische visuals
    Het eindresultaat is tekenend voor u.
    3000+ gebouwen
    3000+ gebouwen
    Deze ervaring telt door in ieder project.
    Hoge bouwsnelheid
    Hoge bouwsnelheid
    Moderne, gecontroleerde productie.
    Hoge waardering
    Hoge waardering
    Een 9+ door meer dan 900 klanten.